Détail du projet
Maison Horizon
Type du projet
✤
Maison
Client
✤
Particulier
Année
✤
2025
Taille
✤
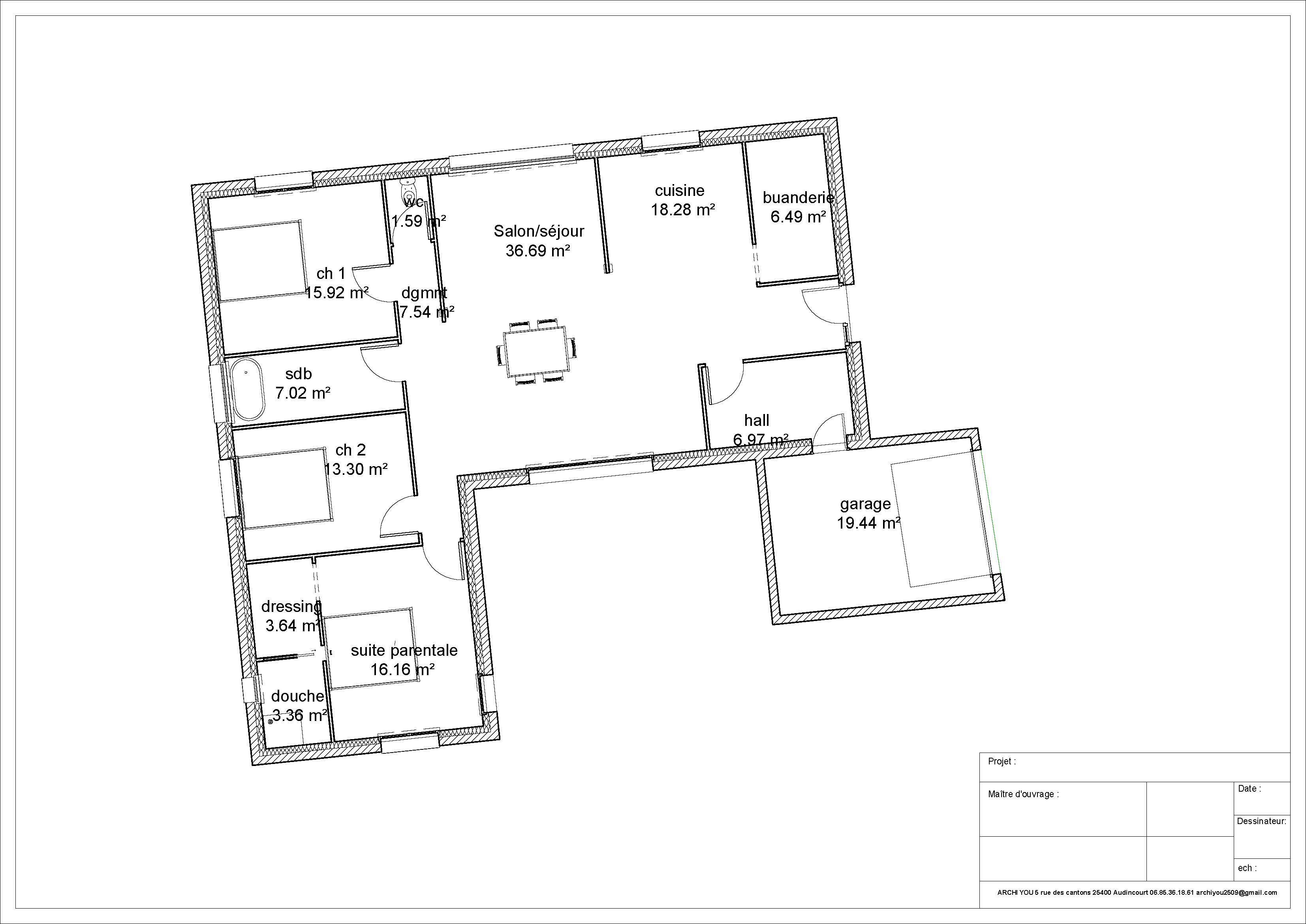
138m2
sq. ft.
Ville
✤
Héricourt
Statut
✤
En construction
Présentation du projet
Cette maison contemporaine se distingue par une architecture sobre et affirmée, caractérisée par des volumes simples et des lignes épurées. La composition du bâti repose sur une organisation claire des espaces, offrant une lecture fluide et équilibrée de l’ensemble.
Les toitures plates et les façades aux teintes neutres renforcent l’esthétique moderne du projet, tout en assurant une intégration harmonieuse dans son environnement. Les ouvertures ont été pensées pour maximiser l’apport de lumière naturelle et améliorer le confort de vie au quotidien.
Démarche architecturale
La maison est conçue autour d’une approche fonctionnelle, où chaque volume répond à un usage précis. Le garage est intégré de manière discrète à la volumétrie générale, tandis que l’entrée est mise en valeur par un jeu de débords et de perspectives.
Ce projet illustre une vision moderne de la maison individuelle, alliant simplicité, confort et durabilité.




